BraTTo不動産FC鶴見放出店 大阪市鶴見区放出駅前賃貸のホームアライブ

Alivis放出

65,500 (管理費等: 10,000 円)

敷金 無料 礼金 1ヶ月
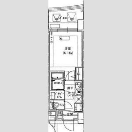
間取り 1K
情報登録日:2026年04月03日
情報更新日:2026年04月07日
次回更新予定日:2026年04月21日
賃料 65,500
管理費 10,000円
敷金/礼金 無料 / 1ヶ月
間取り 1K
広さ 20.64㎡
築年 2025年12月
方位
交通
  • JRおおさか東線「放出」より徒歩6分
  • JR片町線「放出」より徒歩6分
  • OsakaMetro長堀鶴見緑地線「今福鶴見」より徒歩17分
所在地 大阪府大阪市城東区放出西3丁目
建物名:
Alivis放出
保証会社 要加入 /  ジェイリース
初回総賃料50% 毎月300円  1年1万円
鍵交換代 -
諸経費 -
部屋の特徴 ガス(都市ガス)、インターホン(TVモニター付き)、バリアフリー、フローリング、照明器具、ベランダ・バルコニー、収納スペース、クローゼット、クローゼット数(1)、押入れ、バス・トイレ別(別室)、シャワー、脱衣所、給湯、ウォシュレット、洗面台、洗面所独立、シャンプードレッサー、洗濯機置き場(室内)、コンロ設置済、コンロ種類(都市ガス)、システムキッチン、CATV、光ファイバー

Alivis放出に関するお問い合わせ

BraTTo不動産 FC鶴見放出店
  • 〒538-0044
  • 大阪市鶴見区放出東3丁目31-28
  • [営業時間]10:00~19:00
  • [定休日]水曜日定休
  • [免許番号]大阪府知事(4)第048772号